2410 E 20TH AVENUETAMPA, FL 33605




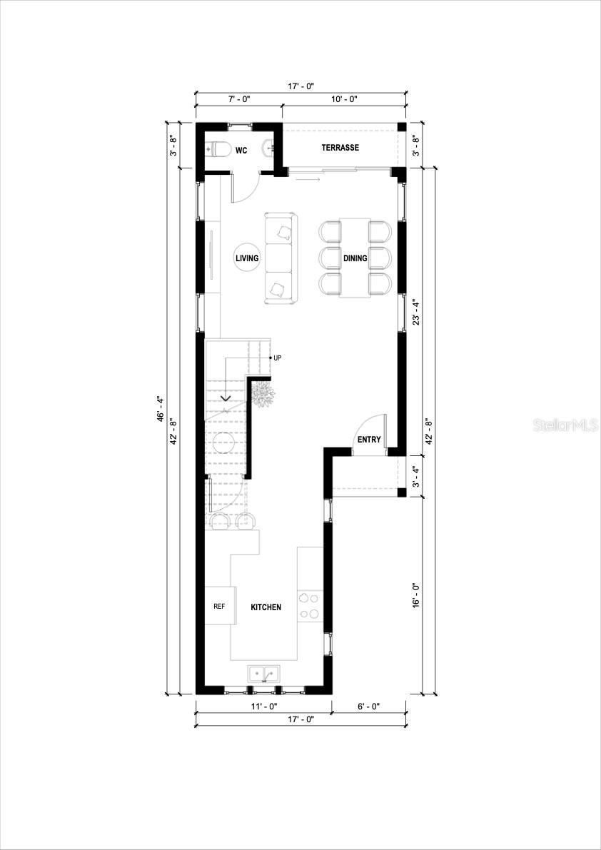
Under Construction. Welcome to your brand-new dream home in the heart of Central Tampa! Currently under construction, this stunning 3-bedroom, 2.5-bathroom single-family residence blends high-end design with modern functionality—perfect for homeowners seeking comfort, convenience, and style. Step inside to a beautiful open-concept floor plan that seamlessly connects the living, dining, and kitchen areas, creating an airy and inviting atmosphere ideal for both everyday living and entertaining. The home features designer-selected finishes throughout, including premium flooring, elegant fixtures, and thoughtfully curated details that elevate every room. The kitchen will showcase sleek cabinetry, quartz countertops, and top-quality materials, making it a true centerpiece of the home. Large windows bring in abundant natural light, highlighting the craftsmanship and quality at every turn. Upstairs, retreat to your private primary suite, complete with a spacious walk-in closet and a luxurious en-suite bathroom featuring dual sinks, quartz countertops, and modern finishes that create a serene, spa-like environment. Two additional bedrooms offer versatility for guests, office space, or a growing household, while the conveniently placed laundry room adds everyday practicality. Situated in the heart of central Tampa, this home provides unbeatable access to everything the city has to offer—vibrant dining, shopping, entertainment, major roadways, top-rated schools, and Tampa’s bustling downtown are all just minutes away. Schedule your showing today
| 2 weeks ago | Listing updated with changes from the MLS® | |
| 2 weeks ago | Status changed to Active | |
| 3 months ago | Listing first seen on site |
Listing information is provided by Participants of the Stellar MLS. IDX information is provided exclusively for personal, non-commercial use, and may not be used for any purpose other than to identify prospective properties consumers may be interested in purchasing. Information is deemed reliable but not guaranteed. Properties displayed may be listed or sold by various participants in the MLS Copyright 2026, Stellar MLS.
Last checked: 2026-03-04 01:36 AM EST

Did you know? You can invite friends and family to your search. They can join your search, rate and discuss listings with you.