0 HIGHLAND STREET SST PETERSBURG, FL 33705



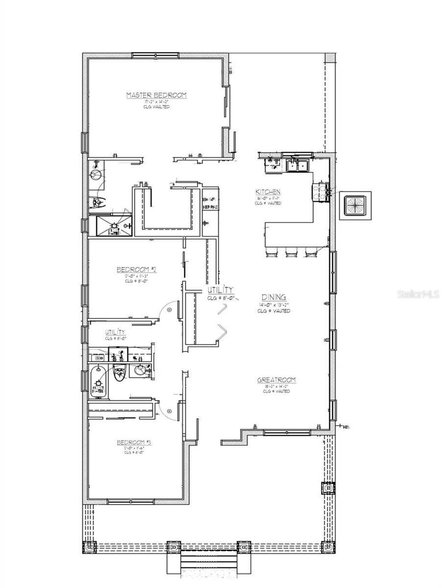
Pre-Construction. To be built. In the heart of South St. Petersburg, a traditional bungalow-style 1,650-square-foot single-family, one-story, block exterior construction, three bedrooms, two-bath home, just minutes south of St. Petersburg’s vibrant downtown. Enjoy quick access to world-class restaurants, the Dali and James Museums, Tropicana Field, theatres, schools, hospitals, waterfront parks and the Pier. World-class St. Pete beaches are just a short drive to the west. Spend evenings sitting on the large front porch conversing with friends and neighbors. Guests enter your home where they will be greeted by the sought-after spacious open floor plan, featuring vaulted ceilings in the great room that continue through the dining area to the kitchen complete with an island featuring a granite surface. Enjoy cooking in your kitchen featuring shaker cabinetry with soft-close drawers, tile backsplash, pot filler over the stove, granite countertops and your choice of appliance colors. Your home will enjoy abundant natural light provided by the many hurricane-rated windows throughout the house. The large primary bedroom has an en-suite bath with large walk-in closet. Two additional bedrooms with remote-controlled ceiling fans complete the sleeping quarters. There are lots of storage options such as a closet/bar in the great room, pantry in the kitchen and a laundry room. A tall wood perimeter fence will ensure privacy while you barbecue and entertain in your backyard sanctuary.
| 6 days ago | Listing updated with changes from the MLS® | |
| 5 months ago | Listing first seen on site |
Listing information is provided by Participants of the Stellar MLS. IDX information is provided exclusively for personal, non-commercial use, and may not be used for any purpose other than to identify prospective properties consumers may be interested in purchasing. Information is deemed reliable but not guaranteed. Properties displayed may be listed or sold by various participants in the MLS Copyright 2026, Stellar MLS.
Last checked: 2026-02-17 09:04 AM EST
Did you know? You can invite friends and family to your search. They can join your search, rate and discuss listings with you.